
环链斗式提升机简介:
环链斗式提升机也可以叫做环链式斗式提升机,是环形料条带动料斗提升物料的设备,是采用混合式或重力卸料,挖取式装料的高效提升设备。
10218旭彩网 奥创生产的环链斗式提升机是牵引件用优质合金钢高度圆环链。中部机壳分单、双通道两种形式为机内重锤箱恒力自动张紧。链轮采用可换轮缘组合式结构。使用寿命长,轮缘更换工作简便。下部采用重力自动张紧装置,能保持恒定的张紧力,避免打滑或脱链,同时料斗遇到偶然因素引起的卡壳现象时有一定的容让性,能够有效地保护下部轴等部件。 适用于输送堆积密度小于1.5t/m3易于掏取的粉状、粒状、小块状的底磨琢性物料。如煤、水泥、碎石、砂子、化肥、粮食等。TH型斗式提升机用于各种散状物料的垂直输送。适用于输送粉状、粒状、小块状物料,物料温度在250℃以下。
设备技术特点视频:
1.输送量大,相同斗宽的TH型与HL型相比,输送量增大近一倍。
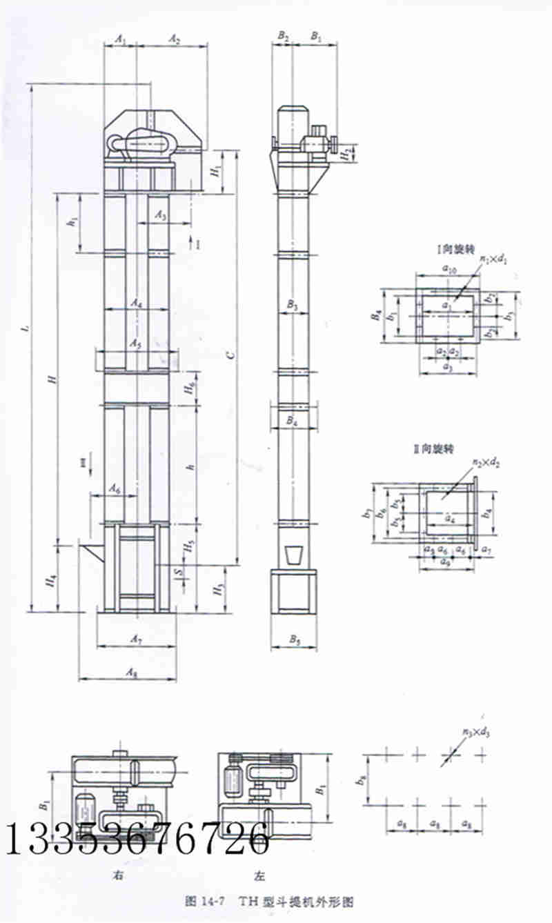
2.采用了组装式链轮。有轮体、轮缘用高强度螺栓联接而成。在链轮磨损到一定程度后,可拧下螺栓,拆换轮缘,更换方便,且节约拆料、降低了维修费;
3.下部采用了重锤杠杆式张紧装置,即可实现自动张紧。一次安装后不需调整,又可以保持恒定的张紧力,从而保证机器的正常运转,避免了打滑或脱链;
4.提升高度运行平稳可靠,噪音小,维护方便。
5.改进机型的提升输送量比普通机型提高30%以上。
10218旭彩网 6.牵引件为低合金高强度园环链,经适当的热处理后,具有很高的抗拉强度和耐磨性,使用寿命长。本提升机为混合或重力方式卸料,掏取式装料,适用输送堆积密度不大于1.5t/m3的物料的粉状、粒状、小块状的低磨琢性物料,物料的温度不得超过250度。
环链提升机结构图纸:
选型参数对照表:
注释:上表为TH型160、200、250型斗式提升机技术参数表,表中料斗容积为盛水容积,输送量按此斗容计算时为填充。
1.表中斗容为计算斗容,输送量按填充系数0.6计算得出。
斗提机安装要求:
煤矿环链斗式提升机安装要求
1、 斗式提升机必须牢固地安装在坚固的砼基础上。砼基础的表面应平整,并呈水平状态,保证斗式提升机安装后达到垂直要求。
高度较高的斗式提升机在其中部机壳和上部机壳的适当位置应与其相临的建筑物(如料仓、车间等)连在一起以增加其稳定性。安装时先安装下部部件,固定地脚螺栓,然后安装中部机壳,后安上部机壳。机壳安装成功,校正垂直度。在全高上下用铅直线测量,误差应小于10mm。上下轴应平行,其轴心线应在同一平面内。
高度较低的斗式提升机安装时,可以在地平面把上、中、下机壳全部连接并较正好,然后整体吊直固定在砼基础上。
2、 机壳安装好后,安装链条及料斗。料斗链接用的U型螺丝,既是链条接头,又是料斗的固定件。U型螺丝的螺母一定要扭紧并可靠防松。
3、 链条及料斗安装好以后,进行适当张紧。
4、 给减速机及轴承座分别添加适当数量的机油和黄油。减速机用工业齿轮油润滑。轴承座内用钙基或钠基黄油均可以。
5、 试运转,安装完成后即应进行空车试运转。空运转应注意:不能倒转,不能有磕碰现象。空运转不小于2小时,不应有过热现象,轴承温升不超过250C,减速机温升不超过300C。空运转2小时后,一切正常即可进行负荷试车。带负荷试车时喂料应均匀,防止喂料过多,堵塞下部造成“闷车”。
10218旭彩网 河南奥创斗式提升机厂家是一家以物料提升机研发生产为主要营业范围的厂家,可为粉末、冶金、化工、医药、矿山、建材、玻璃、食品、涂料、陶瓷、煤炭、石英砂等求购斗式提升机的厂家根据物料属性提供垂直、皮带、环链、板链斗式提升机的行业解决方案,其中包括斗式提升机结构图纸绘画、价格计算、厂家真机图片展示,及到厂实地考察接待,欢迎实地考察!
订购网址请登录河南奥创机械有限公司官方网站: netmop.com 24小时服务热线:13353676726