
圆振动筛的产品概述:
YA系列圆振动筛筛箱运动轨迹为圆,适用于煤、石灰石、碎石、砂砾、金属或非金属矿石及其他物料的筛分。机体采用框架式结构,利用普通电机外拖动振动器使筛体沿激振力方向作周期限性往复振动,物料在筛面上连续作圆运动,从而达到筛分目的。
圆振筛的工作原理:
YA该系列圆振动筛主要由筛箱、筛网、振动器及减振弹簧等组成。振动器安装在筛箱侧板上,并由电动机通过三角皮带带动旋转,产生离心惯性力,迫使筛箱振动。如用户无特殊要求,YA和2YA型为纺织筛面,YA型为冲孔筛面,各类筛面均能满足筛分效率高、寿命长、不堵孔的要求。该系列筛机为座式安装。筛面倾角的调整可通过改变弹簧支座位置高度来实现。电动机可安装在筛框的左侧,出可安装在筛框的右侧,如无特殊要求,制造厂按物料运动方向的右侧安装供货。YA系列圆振动筛引进国外技术制造,具有筛分效率高、结构科学合理、整机强度和刚度高以及运行平稳、坚固耐用、噪音低、维修方便等特点。根据用户不同需求,该系列圆振动筛筛机可选配金属丝编织网、棒条、铸造、焊接、冲孔等多种形式的筛面,以满足不同行业需求。
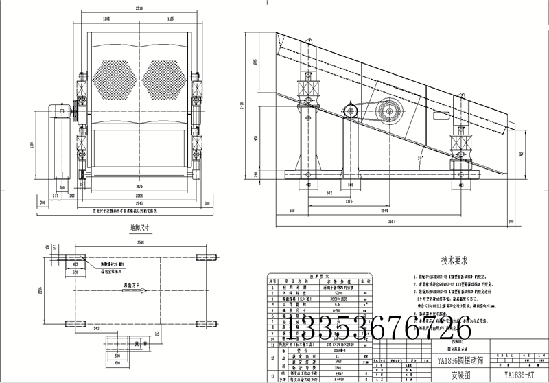
结构组成安装角度:
圆振筛的安装角度一般为15度左右,角度过大过小都会影响筛分设备整体的处理量及效果。
与直线筛的特点的区别:
1、大型圆振动筛结构有编织筛网、冲孔筛板、和聚氨酯筛板。
2、圆振筛结构可靠、激振力强、筛分效率高。
3、高频振动筛筛箱的强烈振动,减少了物料堵塞筛孔的现象,使筛子具有较高的筛分效率和生产率。
圆振筛和直线筛九大项区别
➤ 运动轨迹
圆振动筛上的物料做圆形运动,直线筛上的物料向前做直线运动。
➤ 激振器
圆振动筛由于激振器是一根轴,利用惯性电机工作,所以又叫单轴振动筛,直线振动筛激振器由两根轴组成,利用振动电机激振的原理工作,所以也称双轴振动筛。
➤ 堵孔现象
圆振动筛的物料在筛面上呈抛物圆形轨迹运动,使物料尽可能的分散从而提高了物料弹跳力,且卡在筛孔中的物料也可以跳出,减少了堵孔现象。
➤ 安装布置
直线振动筛由于筛面倾角小,筛子的高度减小,便于工艺布置。
➤ 筛面倾角
根据物料的颗粒大小,圆振动筛可以变化筛面倾角,从而改变物料沿筛面的运动速度,提高筛机的处理量。一般而言,直线振动筛在生产中的筛面倾角较小。
➤ 材质
一般情况下,圆振筛制作时使用的板材较厚,箱体采用锰钢制作,是为了抵抗筛分过程中物料的冲击力。直线振动筛制作用料则以轻型板材或不锈钢板材为主。
➤ 适用领域
圆振动筛主要筛分比重大、颗粒大、硬度高的物料,在矿上、煤炭、采石厂等矿山行业用途较广。
直线筛主要筛分细颗粒、比重轻、硬度不高的物料,以干式粉状、细颗粒状或微粉物料为主,通常在食品、化工、建材、医药行业用途较广。
➤ 处理能力
10218旭彩网
对于圆振动筛而言,由于激振器布置在筛箱重心的上方,故筛箱两端椭圆长轴成下八字形,且给料端椭圆长轴的上端朝向排料方向,有利于物料迅速散开,而排料端椭圆长轴上端逆着排料方向,减轻物料运动速度,有利于难筛物料透筛,且圆弧状的筛面又增大了筛机的有效面积,从而提高其处理能力。
选型参数表:
河南奥创机械设备有限公司专业生产各种输送设备,振动设备商家
订购网址请登录河南奥创机械有限公司官方网站: netmop.com 24小时服务热线:13353676726