
骨料振动筛介绍:
什么是骨料?
混凝土及砂浆中起骨架和填充作用的粒状材料。有细骨料和粗骨料两种。细骨料颗粒直径在0.16~5 mm之间.一般采用天然砂,如河砂、海砂及山谷砂等,当缺乏天然砂时,也可用坚硬岩石磨碎的人工砂;粗骨料颗粒直径大于5 mm,常用的有碎石和卵石,在同样条件下,碎石混凝土的强度比卵石混凝土的高,但碎石是由岩石轧碎而成,成本较卵石为高。轻骨料混凝土中常用的粗骨料有浮石等天然多孔岩石,陶粒、膨胀矿渣等人造多孔骨料。

砂石骨料振动筛介绍
10218旭彩网 砂石骨料振动筛是针对砂石骨料行业研发的一种筛机,该筛机采用全密封设计,环保使用,采用两台振动电机或两串联的四台侧板电机为激振源,两台电机或两组侧板电机反向运转实现自同步,其振动轨迹是直线,筛网是数4-6层,全封闭结构,设计振幅一般在5-7mm范围内。
工作原理:
将颗粒大小不同的碎散物料群,多次通过均匀布孔的单层或多层筛面,分成若干不同级别的过程成为筛分。大于筛孔的颗粒留在筛面上,称为该筛面的筛上物,小于筛孔的颗粒透过筛孔,称为该筛面的筛下物。实际的筛分过程是:大量粒度大小不同、粗细混杂的碎散物料进入筛面后,只有一部分颗粒与筛面接触,由于筛箱的振动,筛上物料层被松散,使大颗粒本来就存在的间隙被进一步扩大,小颗粒乘机穿过间隙,转移到下层或运输机上。由于小颗粒间隙小,大颗粒并不能穿过,于是原来杂乱无章排列的颗粒群发生了分离,即按颗粒大小进行了分层,形成了小颗粒在下,粗颗粒居上的排列规则。到达筛面的细颗粒,小于筛孔者透筛,最终实现了粗、细粒分离,完成筛分过程。然而,充分的分离是没有的,在筛分时,一般都有一部分筛下物留在筛上物中。细粒透筛时,虽然颗粒都小于筛孔,但它们透筛的难易程度不同,物料和筛孔尺寸相近的颗粒,透筛就较难,透过筛面下层的颗粒间隙就更难。
使用优点:
1、能够实现产品多粒度分级。
2、整个筛面分前后两段,实现前后两段倾斜角度略有不同,实现高效筛分。
3、可以通过增加筛网层数,解决二次破碎某挡料粒度含量多或分级粒度跨度大造成的料层厚,筛分不充分的瓶颈。
4、全密闭结构,满足环保要求。
10218旭彩网 5、运行平稳,节能,操作方便。
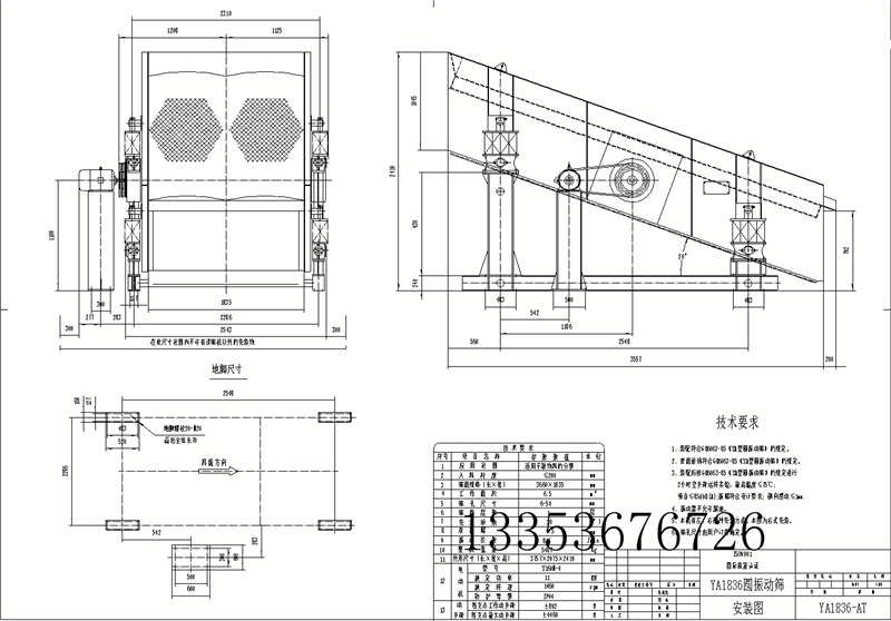
圆振筛结构图纸
振动筛参数表:
使用说明书:
一、日常保养
启动前:
1.检查粗网及细网有无破损
2.每一组束环是否锁紧3.。检查旋振筛的筛框的V型圈是否有破损,如果有破损需要及时修补,防止物料泄露。
启动时:
1、注意有无异常杂音、电流是否稳定
2、振动有无异状
3、使用后:每次使用完毕即清理干净.
二、定期保养
定期的检查粗网,细网和弹簧有无疲劳及破损,机身各部位是否因振动而产生损坏,需添加润滑油的部位必须加油润滑。振动:有了型号 筛面规格 筛面层数 筛孔尺寸 进料粒度 处理量 电机功率 振动频率 双振幅这些数据,可以让搜索震动筛的人有更深刻的了解。
河南奥创机械设备结构图纸、价格计算,欢迎实地考察!
订购网址请登录河南奥创机械有限公司官方网站:netmop.com 24小时服务热线:13353676726